Cell: (541) 771-4824
Sign Up Login
Refine Search

70 NW Birdsdale Ave, Gresham, OR 97030

$1,000,000

7 Total Photos [Click to View All]

Property Description

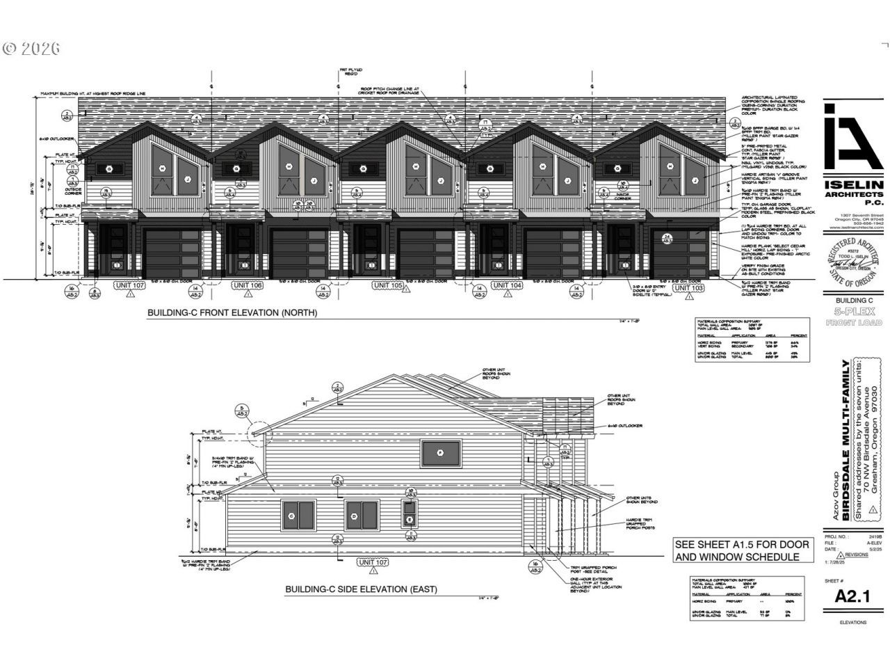
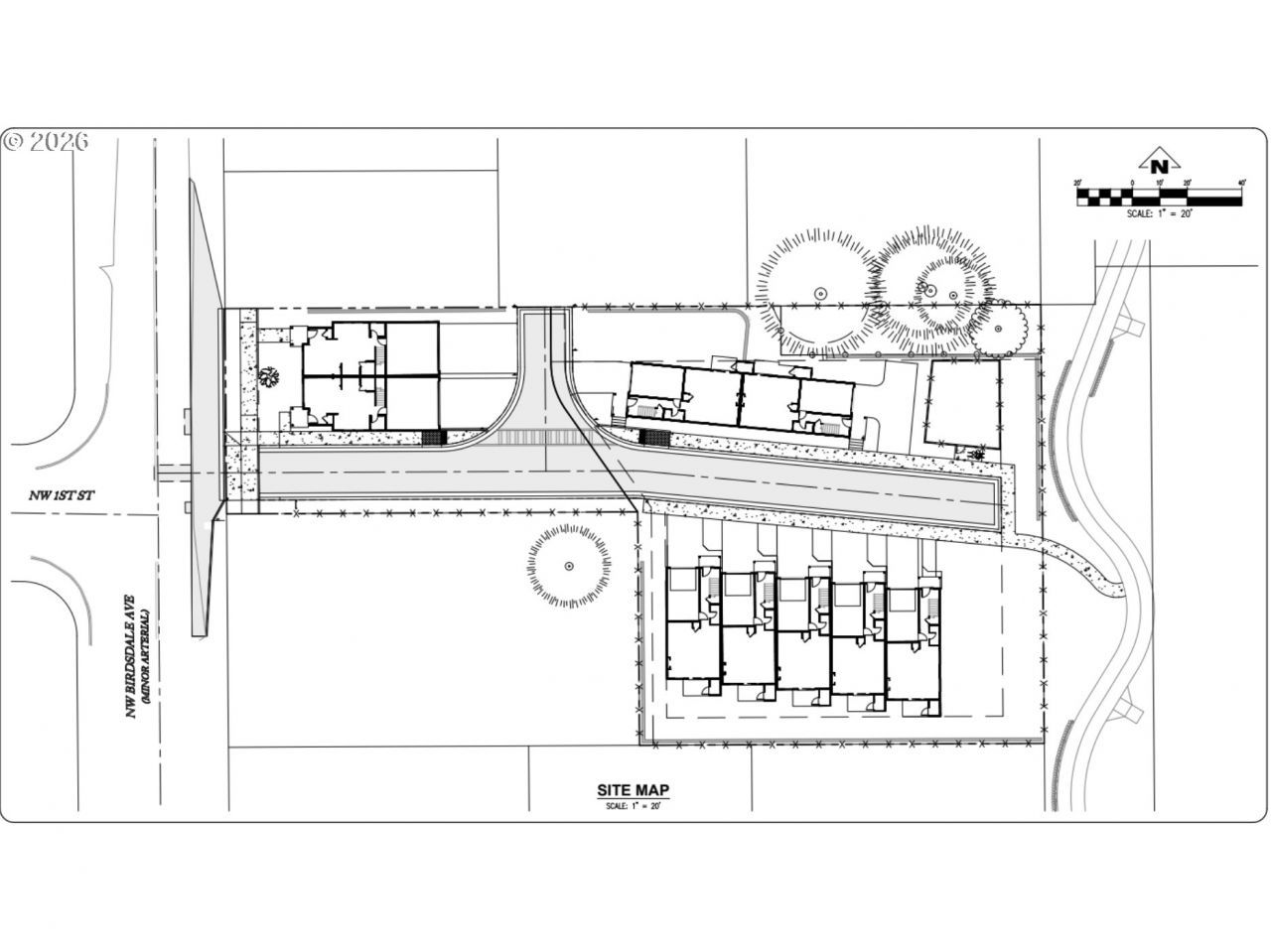
Permit-ready 9-unit townhome development site in Gresham - city only requires permit fees to begin construction. Fully entitled with approved architectural, civil engineering, and landscape plans. Two tax lots totaling 0.78 acres zoned CMU (Corridor Mixed Use), approved for two duplexes and one fiveplex. All nine units designed as 3-bedroom, 2.5-bath two-story townhomes averaging approximately 1,400 SF each (~12,600 SF total livable). Each unit includes a private garage with driveway parking. Site plan includes private driveways, children's play area, stormwater management, bike parking, and landscaped buffers. Flat, cleared lot with all utilities available at the street including public water, sewer, natural gas, and electricity. No existing structures. Located south of Powell Blvd near NW Civic Dr with easy access to MAX light rail, Gresham Station shopping, and Highway 26. Strong rental demand in the Gresham market makes this an ideal build-to-rent or build-to-sell opportunity. Complete entitlement package transfers with sale including civil drawings, architectural plans, and landscape permit set. Buyer selects general contractor and interior finishes. Seller is a licensed Oregon real estate broker with ownership interest in the property.

70 NW Birdsdale Ave | MLS# 624969330

This land located at 70 NW Birdsdale Ave, Gresham, OR 97030 is currently listed for sale with an asking price of $1,000,000. The property has approximately 0.78 Acres. Search Gresham real estate on otiscraig.bendpremierrealestate.com today.

Property Features

Property Type: Land - Multiple
Lot Size: 0.78 Acres
Taxes: $3,311

Feature Descriptions

Days on Site: 11
Lot: Cleared, On Busline, Public Road
Number Of Lots Total: 2
Present Use: RawLand
Road Surface: Paved
Special View Info: Territorial, Trees/Woods
Utilities: Cable Connected, Electricity Available, Natural Gas Available, PublicSewer, Underground Utilities, Water Available

Local Schools

High School: Gresham
Middle School: Clear Creek
Elementary School: North Gresham

Listed By / Shown By

Listed By

Agency Name: Kelly Right Real Estate of Portland, LLC
Agency Phone: 503-719-6056

Shown By

Agent Name: Otis Craig, Broker
Agent Phone: Cell: (541) 771-4824
Agency Title: Bend Premier Real Estate

IDX logo

Estimate Your Payment

Estimated Payment

$ 5,624.13 per month $5,056.54 Principal & Interest $275.92 Property Tax $291.67 Homeowner's Insurance

Change Payment Information

%
years/fixed
yearly
yearly (est.)
(Payments are an estimate and may vary by lender)
Disclaimer: All information deemed reliable but not guaranteed. All properties are subject to prior sale, change or withdrawal. Neither listing broker(s) or information provider(s) shall be responsible for any typographical errors, misinformation, misprints and shall be held totally harmless. Listing(s) information is provided for consumers personal, non-commercial use and may not be used for any purpose other than to identify prospective properties consumers may be interested in purchasing. Information on this site was last updated 04/05/2026. The listing information on this page last changed on 04/05/2026. The data relating to real estate for sale on this website comes in part from the Internet Data Exchange program of Delta Media Group MLS (last updated Sun 04/05/2026 1:28:13 AM EST) or RMLS (last updated Sun 04/05/2026 1:22:18 AM EST) or COAR/MLSCO (last updated Sun 04/05/2026 1:21:18 AM EST). Real estate listings held by brokerage firms other than Bend Premier Real Estate may be marked with the Internet Data Exchange logo and detailed information about those properties will include the name of the listing broker(s) when required by the MLS. All rights reserved.

The content relating to real estate for sale on this web site comes in part from the IDX program of the RMLS of Portland, Oregon. Real estate listings held by other brokerage firms are marked with the RMLS logo, and detailed information about these properties includes the names of the listing brokers. Listing content is copyright © 2026 RMLS, Portland, Oregon. Some properties which appear for sale on this web site may subsequently have sold or may no longer be available.

Privacy Policy / DMCA Notice / ADA Accessibility

Login to My Homefinder

Pixel